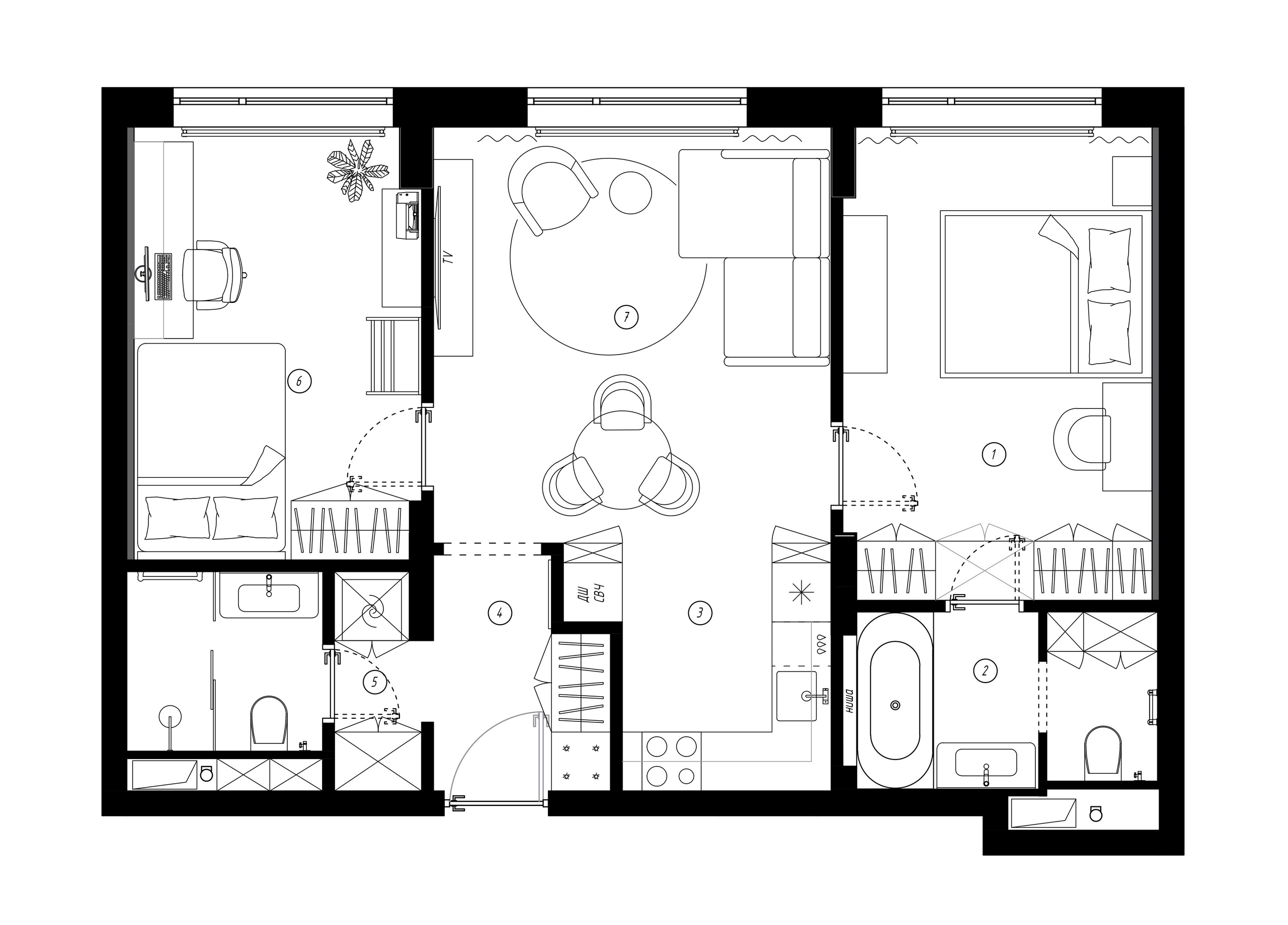
ПРОЕКТ ИНТЕРЬЕРА КВАРТИРЫ В ЖК «ПРЕОБРАЖЕНСКАЯ ПЛОЩАДЬ»
Москва
Площадь объекта: 67 кв. м
Проект 2025 г. (в процессе реализации)
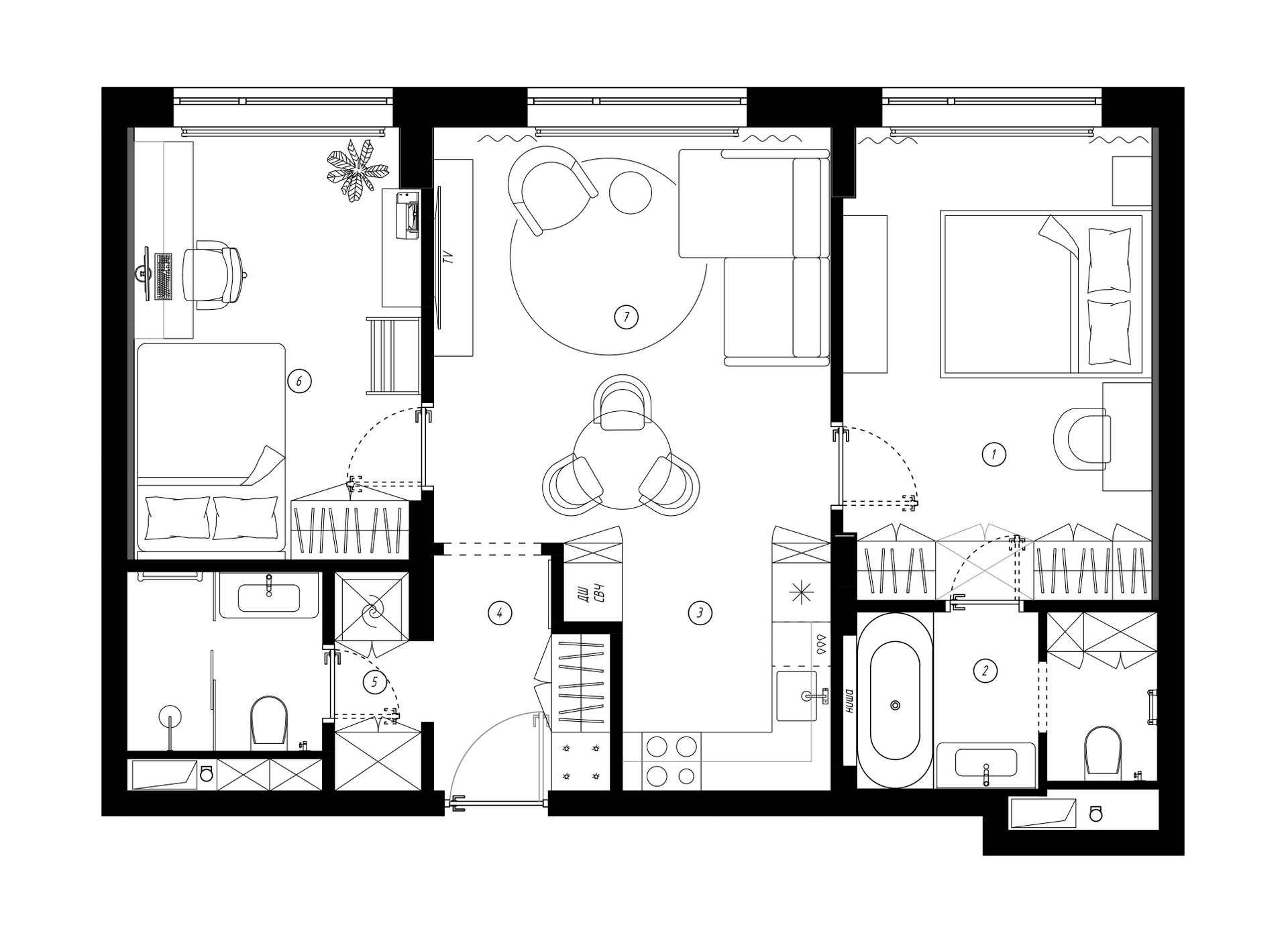
ПРОЕКТ ИНТЕРЬЕРА КВАРТИРЫ В ЖК «ПРЕОБРАЖЕНСКАЯ ПЛОЩАДЬ»
Москва
Площадь объекта: 67 кв. м
Проект 2025 г. (в процессе реализации)